Se connecter
Nos avis clients
Nos avis clients
0

Terrain à bâtir de 294m2 avec permis de construire

Wissous (91320)
Réf : 1888

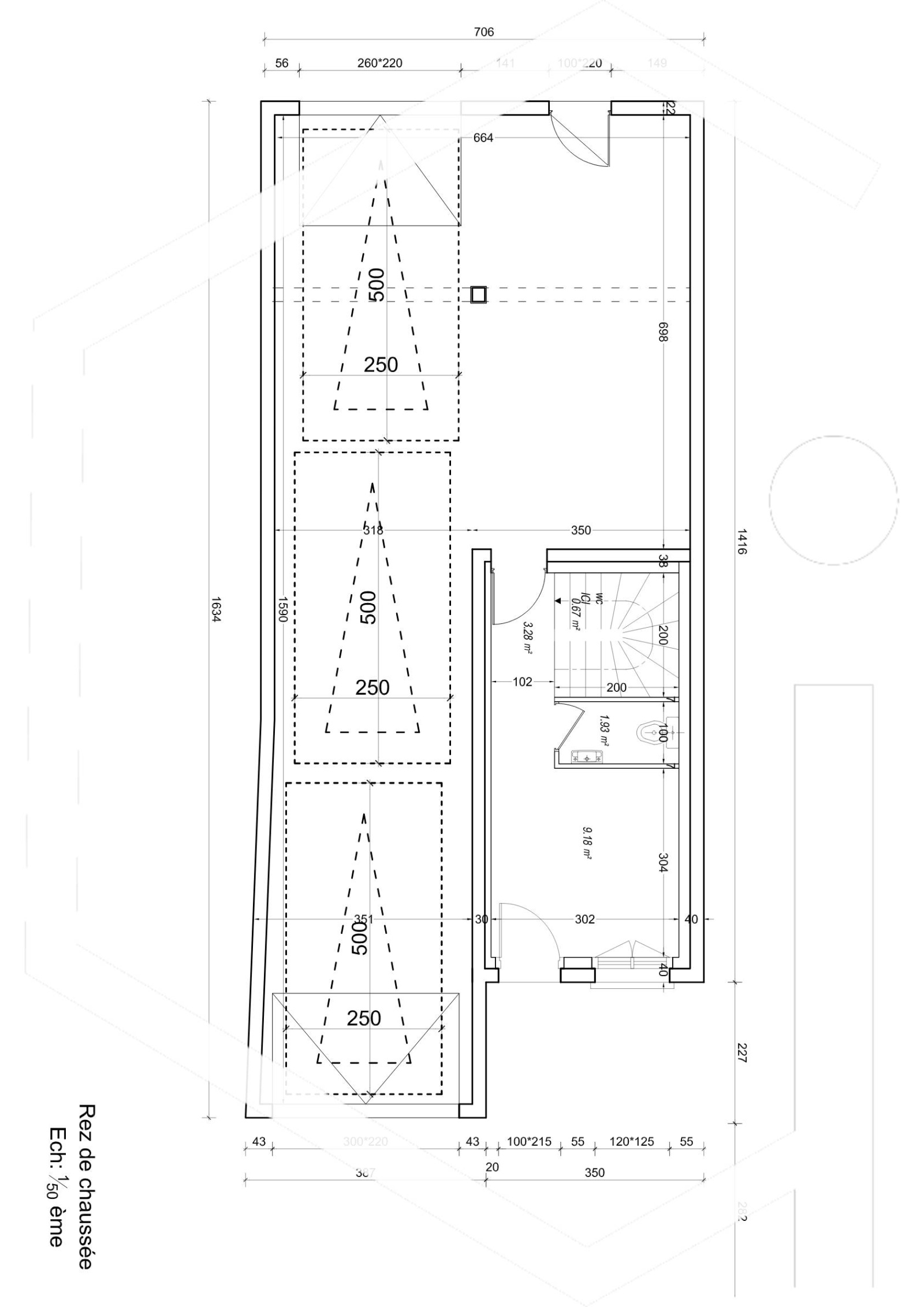
En exclusivité proche Mairie, terrain de 294m2 non viabilisé avec permis de construire accordé, pour une maison sur 3 niveaux de 140m2 composée au rez de jardin d'un garage traversant, une partie remise, une entrée et un wc.  

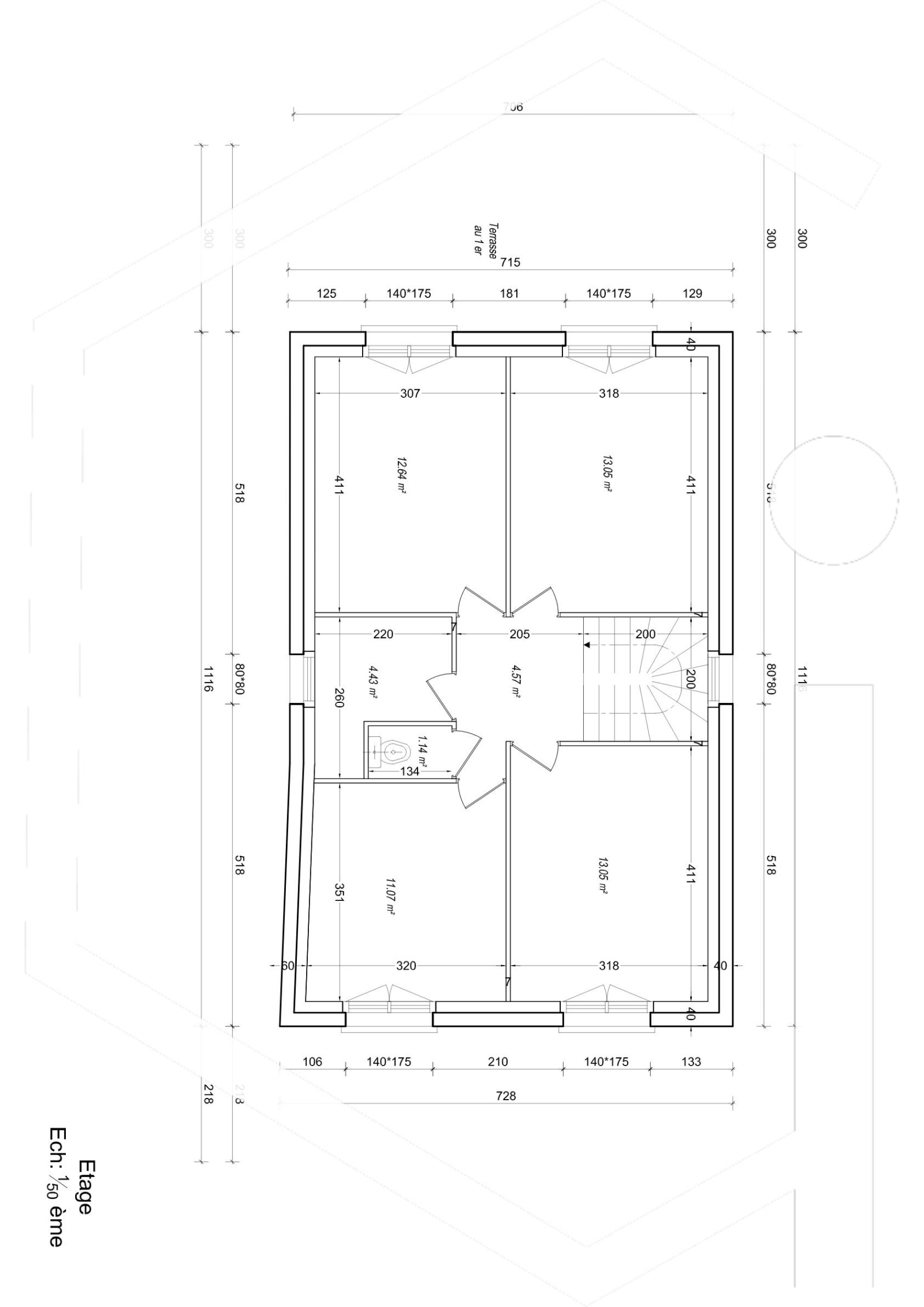
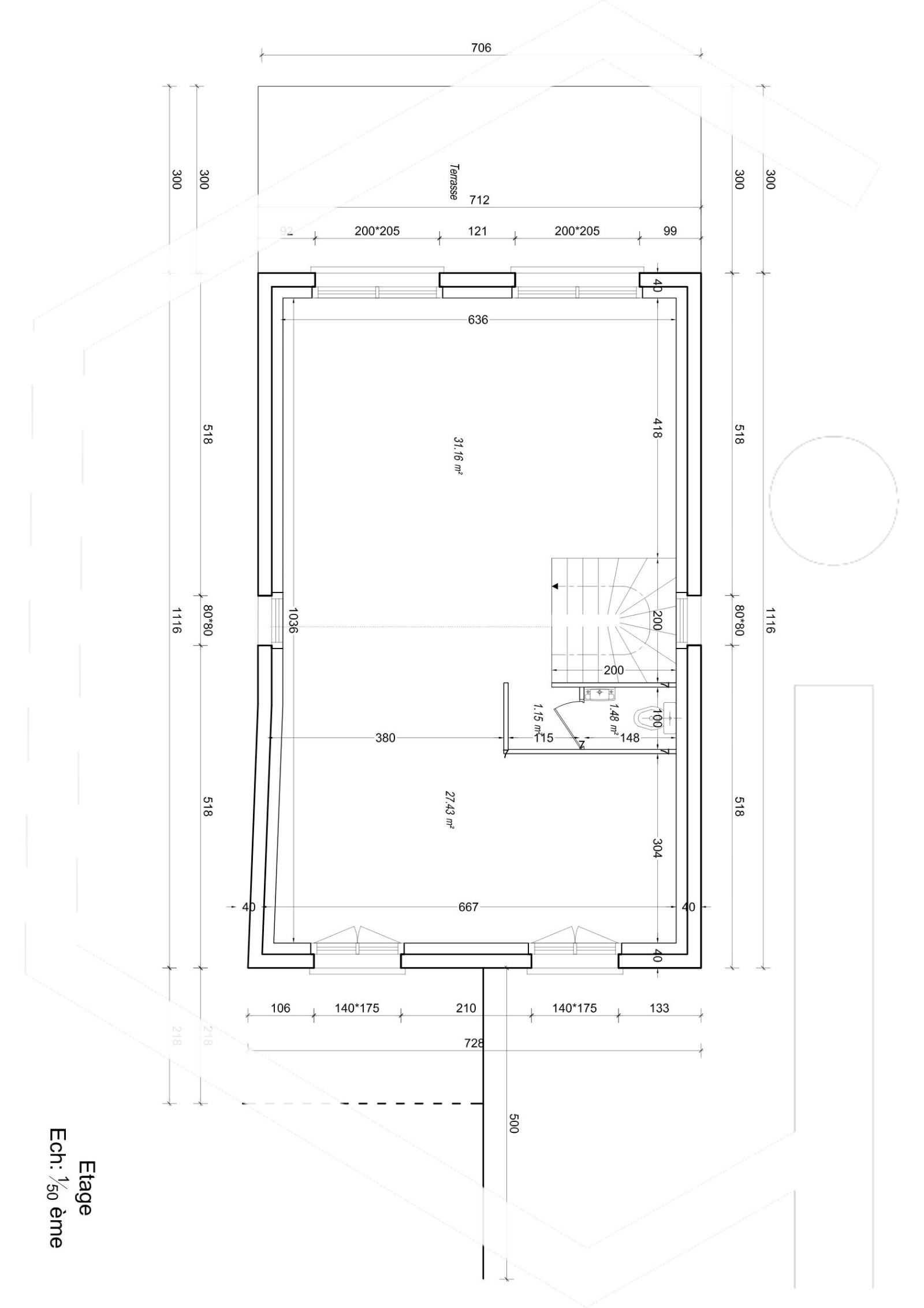
A 1er étage: une pièce à vivre de 60m2

Au 2ème étage: 4 chambres d'environ 13m2 chacunes, une salle de bains et un wc. 

Combles perdus au 3ème.

Annonce proposée par un agent commercial


Les informations sur les risques auxquels ce bien est exposé sont disponibles sur le site Géorisques
Prix du bien 210 000 €

Caractéristiques du bien

Caractéristiques Valeurs
Code postal 91320
surface terrain 294 m²
Terrain constructible OUI
Surface constructible 294
Terrain Viabilisé NON
Raccordement eau NON
Raccordement gaz NON
Raccordement électricité NON
Raccordement téléphone NON

Infos financières

Caractéristiques Valeurs
Prix de vente 210 000 €
Les honoraires d'agence seront intégralement à la charge du vendeur  
Ce bien vous intéresse ?
Fieldset par défaut
Fieldset par défaut
Validation

* Champs obligatoires

Contacter l'agence
Validation
Les informations recueillies sur ce formulaire sont enregistrées dans un fichier informatisé par La Boite Immo agissant comme Sous-traitant du traitement pour la gestion de la clientèle/prospects de l'Agence / du Réseau qui reste Responsable du Traitement de vos Données personnelles. La base légale du traitement repose sur l'intérêt légitime de l'Agence / du Réseau. Elles sont conservées jusqu'à demande de suppression et sont destinées à l'Agence / au Réseau. Conformément à la loi « informatique et libertés », vous disposez des droits d’accès, de rectification, d’effacement, d’opposition, de limitation et de portabilité de vos données. Vous pouvez retirer votre consentement à tout moment en contactant directement l’Agence / Le Réseau. Consultez le site https://cnil.fr/fr pour plus d’informations sur vos droits. Si vous estimez, après avoir contacté l'Agence / le Réseau, que vos droits « Informatique et Libertés » ne sont pas respectés, vous pouvez adresser une réclamation à la CNIL. Nous vous informons de l’existence de la liste d'opposition au démarchage téléphonique « Bloctel », sur laquelle vous pouvez vous inscrire ici : https://www.bloctel.gouv.fr Dans le cadre de la protection des Données personnelles, nous vous invitons à ne pas inscrire de Données sensibles dans le champ de saisie libre.
Ce site est protégé par reCAPTCHA, les Politiques de Confidentialité et les Conditions d'Utilisation de Google s'appliquent.

Localisationdu bien

Ces biens peuvent vous intéresser